Fresneda & Zamora Fresneda & Zamora
  • Proyectos
  • Estudio
  • Español
  • Inglés
  • Instagram
  • Behance
  • Houzz
Eng/Esp
Servicios sociales en El Ejido

Servicios sociales en El Ejido

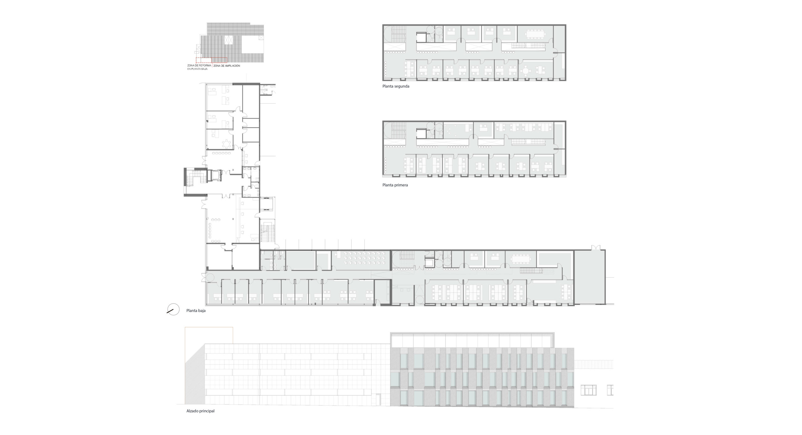
En la zona sureste del municipio de El Ejido se localiza una parcela municipal que alberga un edificio destinado a Policía Local y Centro de Servicios Sociales, junto a una nave industrial sin uso definido. La ampliación del Centro de Servicios Sociales ocupa parte de dicha nave, respondiendo a premisas claras: un volumen compacto, sencillo y seriado, ejecutado mediante un sistema constructivo racional que facilite la conexión con el edificio existente y establezca un diálogo coherente con él.


El conjunto se ordena a partir de una estructura repetitiva coronada por un lucernario longitudinal que ilumina y ventila todos los espacios, incluso los adosados a la nave. La entrada de luz a través de esta gran linterna reduce la percepción de compacidad y aporta una atmósfera más amable.
Se genera un acceso único junto al edificio original, configurando la nueva entrada común. En planta baja y segunda se ubican las áreas de atención al público y las oficinas.


El tratamiento interior apuesta por la transparencia, la doble iluminación y ventilación, incorporando elementos de seriación que atenúan la monotonía y ordenan las circulaciones.

  • Categoría. Equipamiento público
    Localización. El Ejido, Almería
    Fecha de ejecución. 2022
    Fotografía. Javier Callejas

Anterior / Siguiente
Instagram / Behance / Houzz
Fresneda & Zamora © 2026
Aviso Legal

Utilizamos cookies propias y de terceros para mejorar tu experiencia y nuestros servicios. Si continúas navegando consideramos que aceptas su uso. Puedes Obtener más información en nuestra Política de cookies.